Галерия

Сграда 1

Вижте разпределението по етажи

Подземен етаж

Апартамент 1

Апартамент 1

Партер
  • Обща площ: 58.32 м²
  • Спалня: 11.1 м².
  • Всекидневна: 21.7 м²
  • Санитарен възел: 4.0 м²
  • Изложение: Югозапад
  • Статус: AVAILABLE
Вижте разпределението
Апартамент 2

Апартамент 2

Партер
  • Обща площ: 65.34 м²
  • Спалня: 15.5 м².
  • Всекидневна: 19.5 м²
  • Санитарен възел: 4.1 м²
  • Склад/Килер: 7.0 м²
  • Изложение: Североизток
  • Статус: AVAILABLE
Вижте разпределението
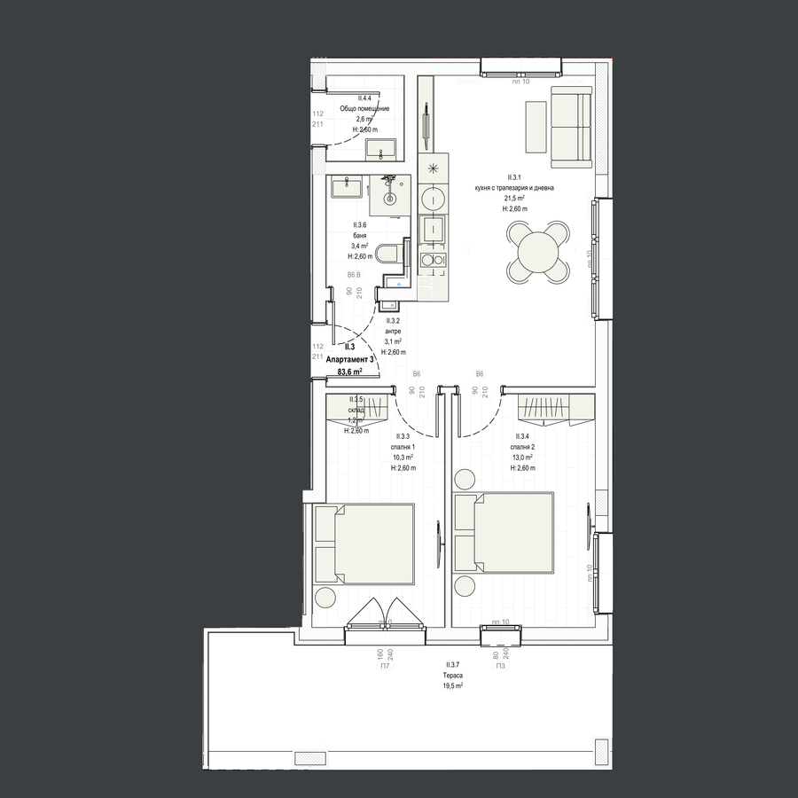
Апартамент 3

Апартамент 3

Партер
  • Обща площ: 101.15 м²
  • Балкон: 19.5 м²
  • Спалня: 23.3 м².
  • Всекидневна: 21.5 м²
  • Санитарен възел: 3.4 м²
  • Склад/Килер: 4.3 м²
  • Изложение: Югоизток
  • Статус: AVAILABLE
Вижте разпределението
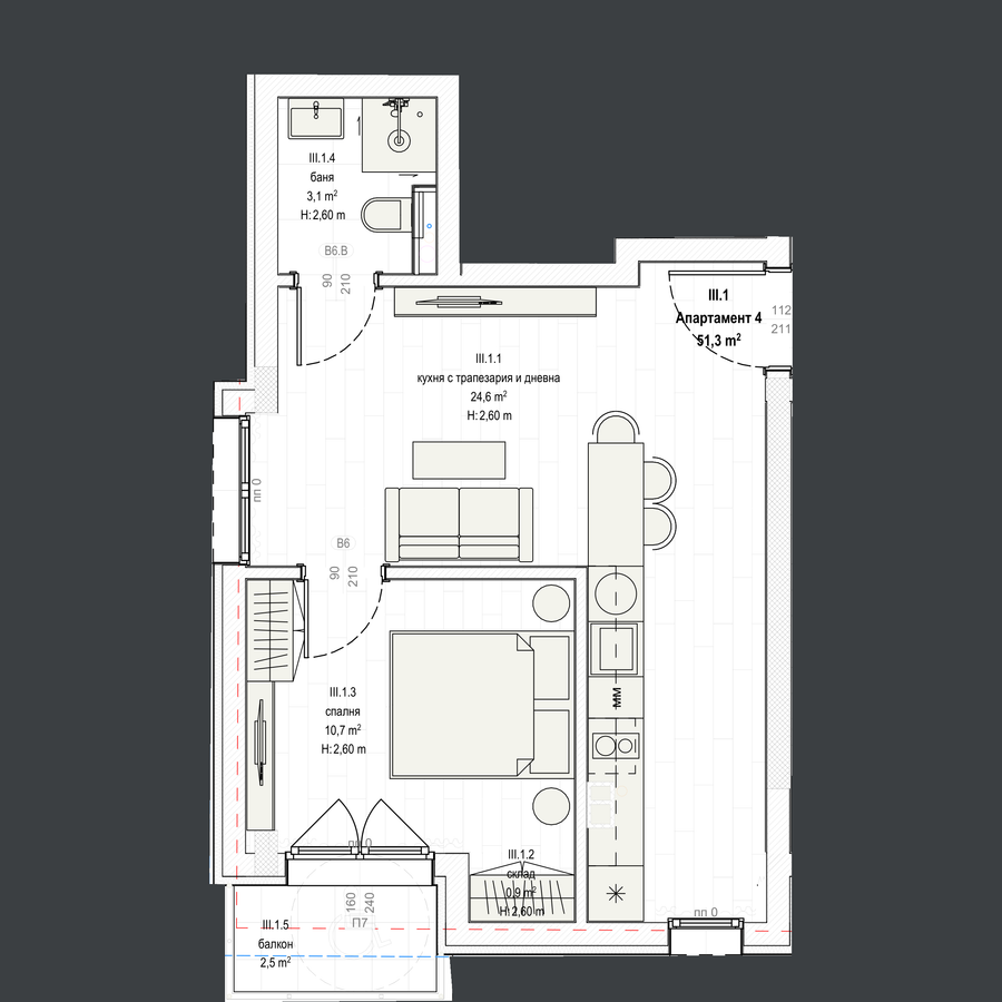
Апартамент 4

Апартамент 4

Етаж 1
  • Обща площ: 62.07 м²
  • Балкон: 2.5 м²
  • Спалня: 10.7 м².
  • Всекидневна: 24.6 м²
  • Санитарен възел: 3.1 м²
  • Склад/Килер: 0.9 м²
  • Изложение: Югозапад
  • Статус: AVAILABLE
Вижте разпределението
Апартамент 5

Апартамент 5

Етаж 1
  • Обща площ: 58.32 м²
  • Балкон: 1.5 м²
  • Спалня: 15.4 м².
  • Всекидневна: 18.8 м²
  • Санитарен възел: 3.0 м²
  • Склад/Килер: 1.1 м²
  • Изложение: Северозапад
  • Статус: AVAILABLE
Вижте разпределението
Апартамент 6

Апартамент 6

Етаж 1
  • Обща площ: 72.96 м²
  • Балкон: 3.0 м²
  • Спалня: 17.1 м².
  • Всекидневна: 21.7 м²
  • Санитарен възел: 3.5 м²
  • Склад/Килер: 4.8 м²
  • Изложение: Североизток
  • Статус: AVAILABLE
Вижте разпределението
Апартамент 7

Апартамент 7

Етаж 1
  • Обща площ: 64.13 м²
  • Балкон: 3.9 м²
  • Спалня: 9.7 м².
  • Всекидневна: 20.0 м²
  • Санитарен възел: 4.3 м²
  • Склад/Килер: 5.6 м²
  • Изложение: Югоизток
  • Статус: AVAILABLE
Вижте разпределението
Ателие 1

Ателие 1

Етаж 1
  • Обща площ: 51.42 м²
  • Балкон: 5.3 м²
  • Санитарен възел: 3.3 м²
  • Склад/Килер: 28.3 м²
  • Изложение: Север
  • Статус: AVAILABLE
Вижте разпределението
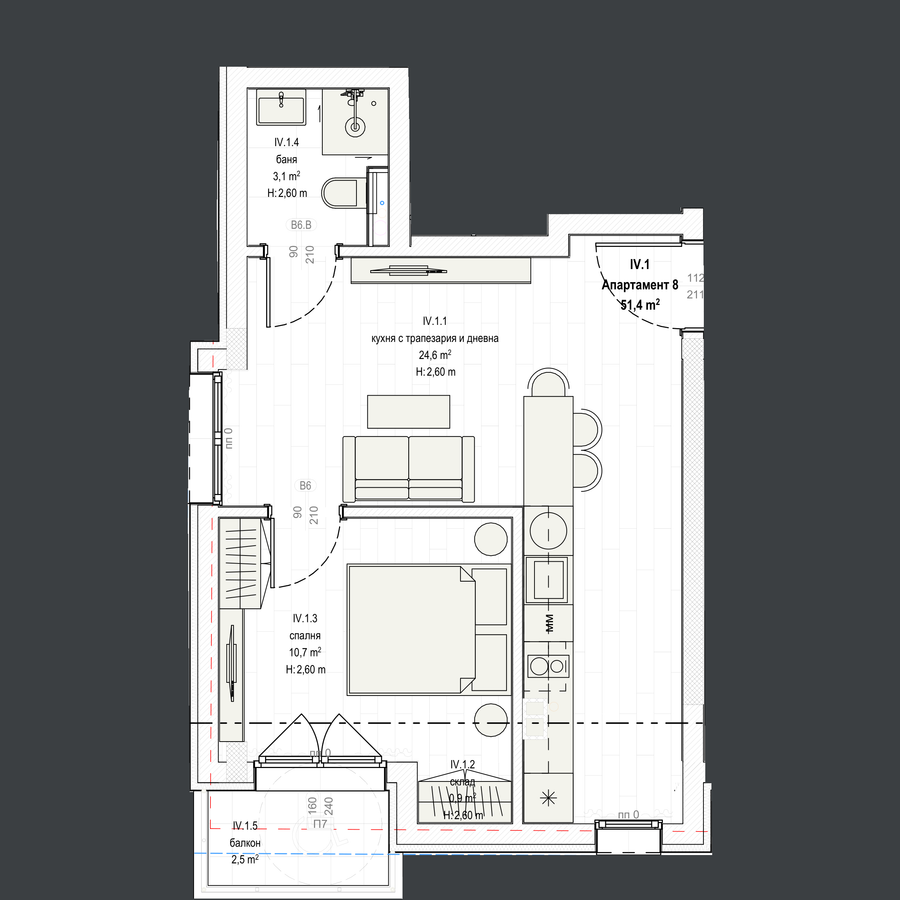
Апартамент 8

Апартамент 8

Етаж 2
  • Обща площ: 62.19 м²
  • Балкон: 2.5 м²
  • Спалня: 10.7 м².
  • Всекидневна: 24.6 м²
  • Санитарен възел: 3.1 м²
  • Склад/Килер: 0.9 м²
  • Изложение: Югозапад
  • Статус: AVAILABLE
Вижте разпределението
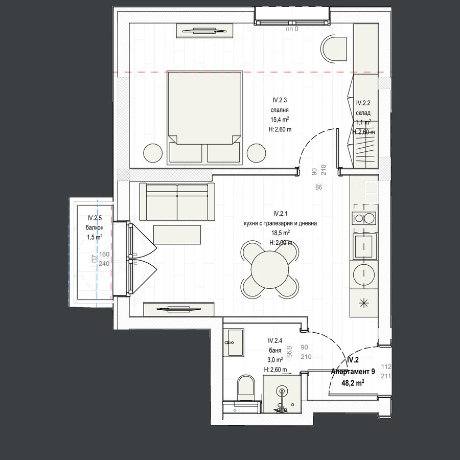
Апартамент 9

Апартамент 9

Етаж 2
  • Обща площ: 58.32 м²
  • Балкон: 1.5 м²
  • Спалня: 15.4 м².
  • Всекидневна: 18.5 м²
  • Санитарен възел: 3.0 м²
  • Склад/Килер: 1.1 м²
  • Изложение: Северозапад
  • Статус: AVAILABLE
Вижте разпределението
Апартамент 10

Апартамент 10

Етаж 2
  • Обща площ: 75.26 м²
  • Балкон: 3.0 м²
  • Спалня: 16.5 м².
  • Всекидневна: 21.7 м²
  • Санитарен възел: 3.5 м²
  • Склад/Килер: 4.8 м²
  • Изложение: Североизток
  • Статус: AVAILABLE
Вижте разпределението
Апартамент 11

Апартамент 11

Етаж 2
  • Обща площ: 64.13 м²
  • Балкон: 3.9 м²
  • Спалня: 9.7 м².
  • Всекидневна: 20.0 м²
  • Санитарен възел: 4.3 м²
  • Склад/Килер: 5.6 м²
  • Изложение: Югоизток
  • Статус: AVAILABLE
Вижте разпределението
Ателие 2

Ателие 2

Етаж 2
  • Обща площ: 51.42 м²
  • Балкон: 5.3 м²
  • Санитарен възел: 3.3 м²
  • Склад/Килер: 28.3 м²
  • Изложение: Север
  • Статус: AVAILABLE
Вижте разпределението
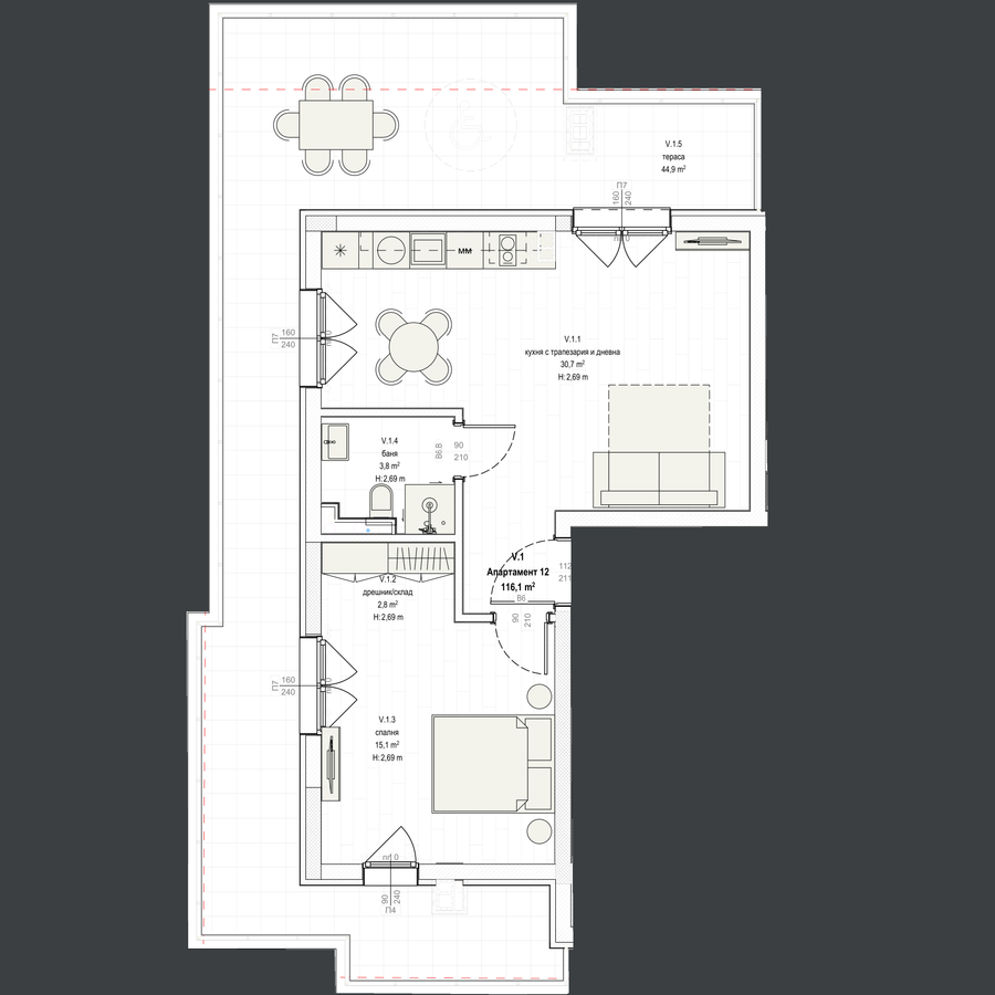
Апартамент 12

Апартамент 12

Етаж 3
  • Обща площ: 140.48 м²
  • Балкон: 44.9 м²
  • Спалня: 15.1 м².
  • Всекидневна: 30.7 м²
  • Санитарен възел: 3.8 м²
  • Склад/Килер: 2.8 м²
  • Изложение: Югозапад
  • Статус: AVAILABLE
Вижте разпределението
Апартамент 13

Апартамент 13

Етаж 3
  • Обща площ: 151.0 м²
  • Балкон: 47.7 м²
  • Спалня: 12.2 м².
  • Всекидневна: 33.1 м²
  • Санитарен възел: 4.2 м²
  • Склад/Килер: 5.9 м²
  • Изложение: Югоизток
  • Статус: AVAILABLE
Вижте разпределението